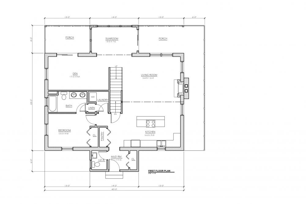
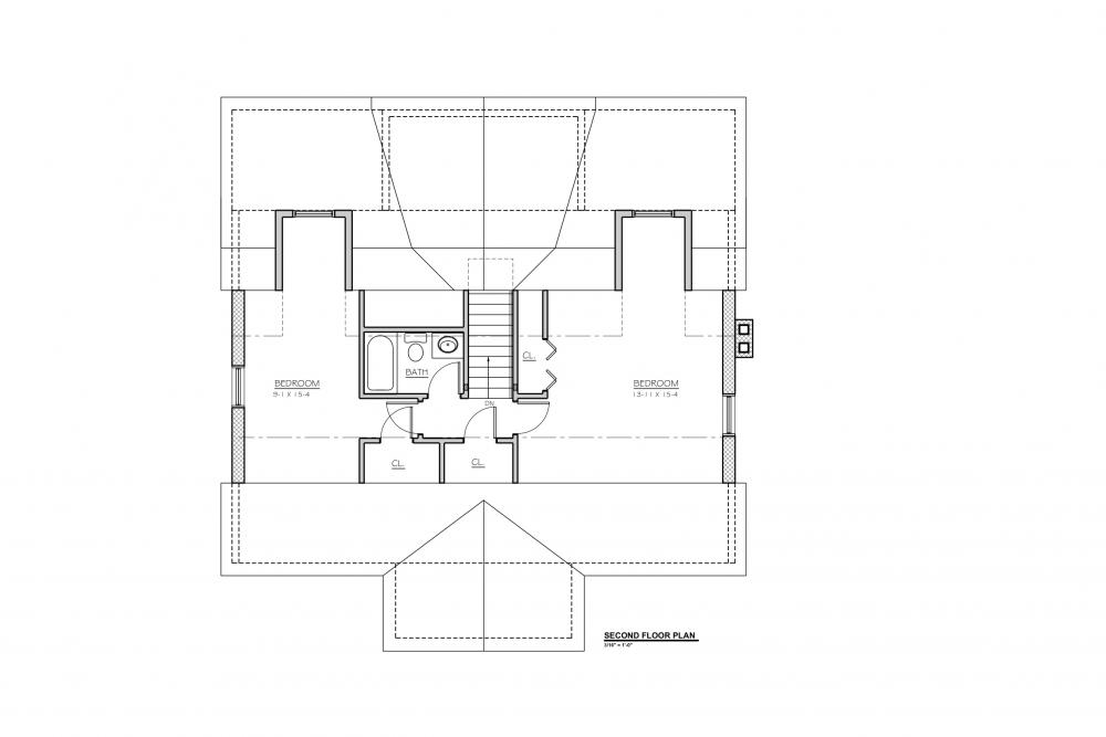
The Black Forest home is a two story cape cod style home with a full second floor or the option to go with a half loft. The open floor plan with the eat-in kitchen design gives this home a nice sized living room and den for a quiet place to read or watch your favorite movie. A great feature on this home is the sunroom right out front! Enjoy this area all year round! On the second floor, you fill find two bedrooms and a full bath. This floor plan works perfectly to add a walk-out basement under the sunroom and front porches. Interested in a garage? Adding a garage to the mudroom would make this home complete. Have some more ideas for this design, let us make the changes that will work for you!
The Black Forest Trail gets its name from the dense hemlocks that once grew in the area. They never let the sunlight in, keeping the forest floor in an everlasting darkness. Located in the Tiadaghton State Forest, this hike will lead you down 42 miles starting and ending in Slate Run. This is a challenging trail with 8 ascents of 500 feet, however, one to for sure add to your list. Be sure to get more information at www.pahikes.com before you leave!




