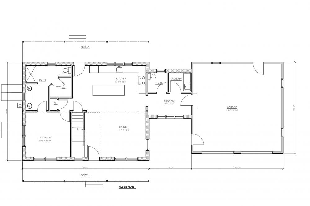
The Old Logger is a full two story home with an attached mudroom and garage. The open concept of the kitchen and living room allows everyone feel a part of the family. The master bedroom is on the first floor with a huge bathroom and walk in closet! On the second floor you will find an additional 2 bedrooms that share a common bathroom. The Old Logger also has a beautiful front and back porch so you can catch the sunrise and sunset. This was also designed for a full basement option, making some serious room for that man cave you always wanted! We have one of these model homes locally if you would like to see one in person. We can customize this home to best meet your needs.
The Loggers path is a 27.1 long circuit trail located in Northeastern Lycoming Country. The trail is located on land that formerly belonged to the Central Pennsylvania Lumber Company. You will find yourself on trails built by the logging railroaders that follows Rock Run in the Loyalsock Trail Region. Visit www.pahikes.com before planning your trip!




