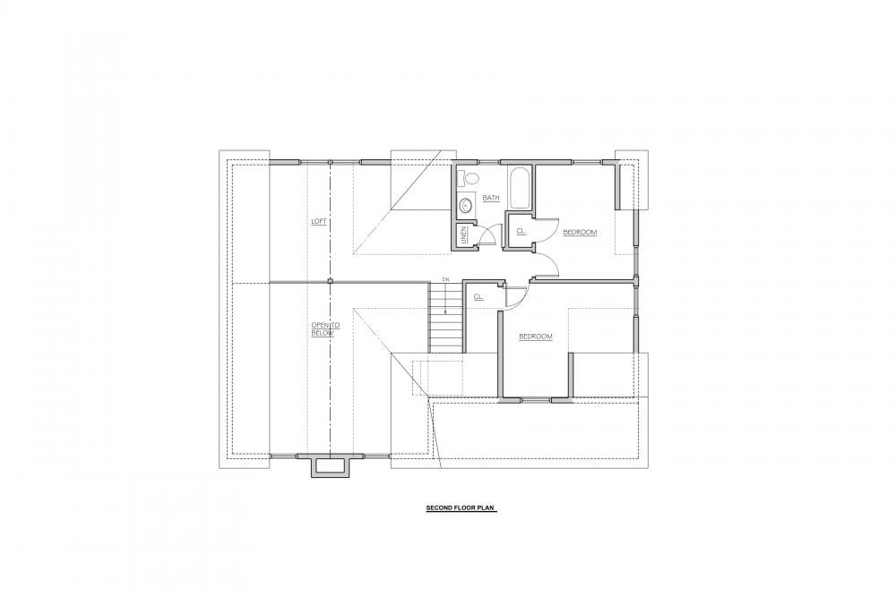
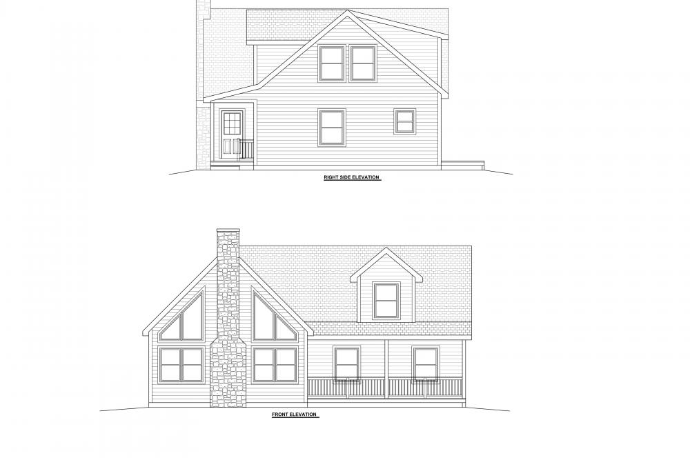
The open floor plan in the kitchen, dining room and living room makes this home the perfect for entertaining guests. The cathedral ceiling over the living room continues the open feel throughout the entire first floor. The optional fireplace is the focal point both inside and outside of this home! You will find the master bedroom on the first floor with an optional laundry and half bath. On the second floor are two bedrooms with a common bath. In addition to the bedrooms upstairs, there is a bonus loft area for an office or reading room. This design lends it’s self to a walkout basement and an attached garage. We will customize the West Rim to meet your exact needs!
The West Rim Trail is one of the most scenic hiking trails in Pennsylvania that follows the western edge of Pine Creek. Stretching from Blackwell to Ansonia, you will see some of the best views of the PA Grand Canyon on your 30-mile hike. There are options for overnight and multi-day trips as well. Read more before you enjoying this hike at www.PAHikes.com.




